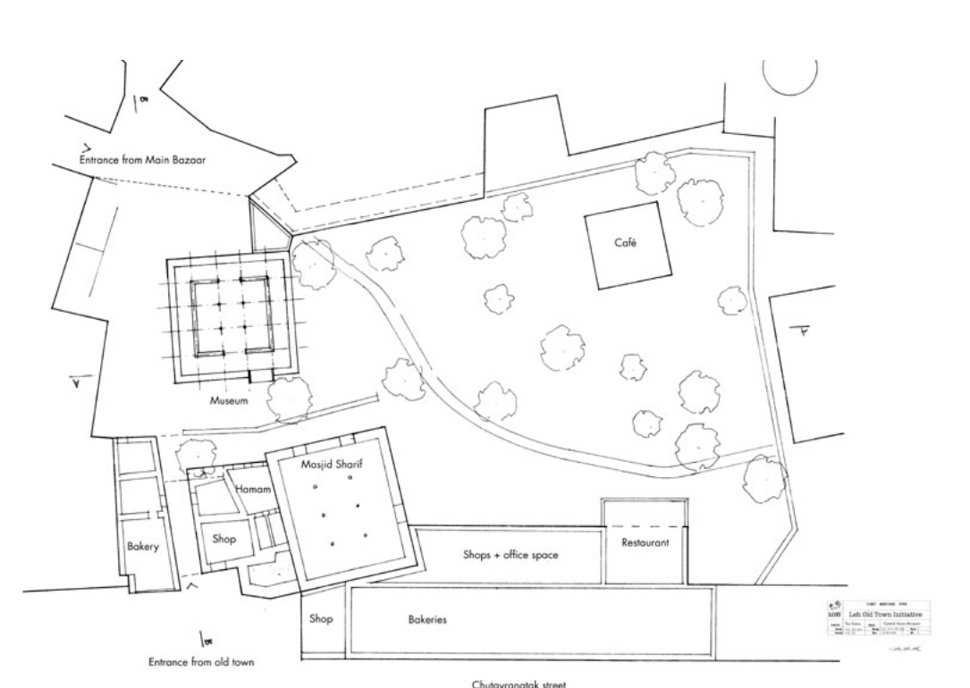
When you walk through the Old Town of Leh, you will definitely come across this museum. The complex is located right next to the main Leh Market and there are 2 entrances in 2 different building styles: the North or Kashmiri gate in islamic style, and the Ladakhi / Tibetan gate on the southside.
The museum is situated in the courtyard of Leh’s oldest Masjid or mosque, the Tsas Soma Zangsti and houses all kinds of Ladakhi artefacts, manuscripts and pieces of heritages collected from the 18th and 19th centuries.



Cultural melting pot
Since Ladakh has been under the confluence of many cultures over the past centuries, the way of life, traditions and customs have been heavily influenced by neighboring regions (Central Asia, Afghanistan and Tibet, to name a few).
This changed completely during the mid-20th century: due to political events which plunged Ladakh into relative geographic and cultural isolation.
In 2007 restoration of the mosque was going on, and that’s where the idea of establishing the first proper museum of Leh, arose.



The view from the balcony of the museum
Part of Centrial Asian trade
The construction started in August 2008 by Anjuman Moinul Islam Leh, with the help of the Department of Tourism and Culture of Jammu & Kashmir, and the Tibet Heritage Fund / Leh Old Town Initiative. In December 2016 the museum formally opened to the public.

The ceiling of the ground floor, according to the concept of the museum, is built in early Ladakhi and Baltistani style.
The capitals have been adapted from the Tsemo tower, and the center is a diamond ceiling, as found in many early Ladakhi temples. (source: Tibetan Heritage Fund)
The aim of the place is to raise awareness about and encourage research into the history of Ladakh. And to inform people about the Central Asian trade, of which Ladakh has been an important crossroad for long, and which has had a long and lasting influence on the culture.


Ladakhi inheritance
The four floors of the museum are connected by a spiral staircase with a special rope construcution in the middle of all of them. From the top floor you can look all the way down to the ground floor, where a metal pot is hanging.
Each floor stores all kinds of photos and objects that display the cultural inheritance of Ladakh. You are not allowed to take photos inside the museum.
Examples of artifacts Currently, the Central Asian Museum houses pieces of rock art, ancient Ladakhi day-to-day instruments like the weighing balance and old abacus, coins from several Central Asian states, old caravan water heater, utensils from Yarkand, manuscripts like Bodhi and Turkish tafseers of the Holy Quran. (Source: Jktourism.jk.gov.in)
In the ground floor you find a small photo gallery with historical images of Leh Ladakh. Each floor above is devoted to a specific region: the first to Ladakh, the second to Central Asia, the third to Tibet and the top floor to Baltistan.


On the premises you not only find the museum, but also a hidden courtyard with Leh’s oldest mosque, a research library, seminar hall, a replica of a traditional Ladakhi chantsa (kitchen) and a small eatery.



(Sources: Central Asian Museum Leh, Tibetheritagefund.org)
Practical info about visiting Central Asia Museum 2021 – shortlist to screenshot
- Opening times: 10.00am – 6.00pm (from May to October)
- Required time: 2 – 3 hrs
- Costs: 50R (€ 0,60)
- Don’t forget:
- a visit to the museum will give you a big insight to the history of Leh and Ladah;
- there are 2 entrances: the North or Kashmiri gate and the South or Ladakh gate facing the Main Bazaar;
- only outside photography is allowed;
- the organizers of the museum will be highly appreciative of any contribution made to the library and museum, in the shape of a donation, or any object (photos, books, etc.) relevant to the history of Ladakh;
- when we visited the eatery was closed, but normally you can also have a chai and snacks in the peaceful courtyard of the museum;
- on the website of the Heritage Fund you can read into more detail about the well thought-out establishment of the museum.
Tips @Breuhuys
Shanti Stupa, Leh Ladakh 194104, India


One Reply to “”